DANTON FUKUOKA DANTON FUKUOKA DANTON FUKUOKA
- 敷地 site 场地
-
福岡県福岡市博多
Fukuoka, JAPAN
福岡県、日本
- 主要用途 program 主要功能
-
店舗
store
品牌概念店
- 延床面積 floor area 建筑面积
-
68.58 ㎡
68.58 ㎡
68.58 ㎡
- 施主 client 业主
-
株式会社ビショップ
Bshop inc.
Bshop inc.
- 設計 design 设计
-
株式会社小大建築設計事務所
kooo architects
小大建筑设计事务所
- 担当 staff 负责人
-
小嶋伸也・小嶋綾香・黄 永顺・罗伊・宮嶋悠輔・松田夏紀・小暮啓太
Shinya Kojima・Ayaka Kojima・Yongshun Huang・Yi Luo・Yusuke Miyajima・
Natsuki Matsuda・Keita Kogure小嶋伸也・小嶋綾香・黄永顺・罗伊・宮嶋悠輔・松田夏紀・小暮啓太
- 施工 construction 施工
-
株式会社船場
SEMBA CORPORATION
SEMBA CORPORATION
- 写真 photo 摄影
-
堀越 圭晋/SS Tokyo
Keishin Horikoshi/ SS Tokyo
Keishin Horikoshi/ SS Tokyo
- メディア media 媒体
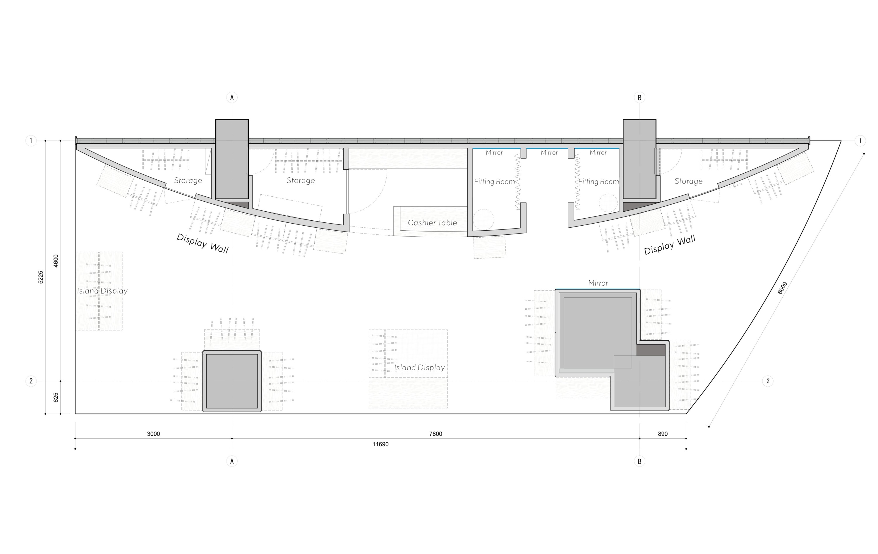
DANTON FUKUOKAは、短手2面と長手1面の計3面が通路に面し、残る長手1面のみが壁面という、3方開放の特異な区画に位置しています。店内の視認性が非常に高く、開放感のある区画である一方で、壁面が極めて少なく、空間を通じてブランドの世界観を表現するには難しさを感じる区画でもありました。
また、短手方向の両側から来る来館者の視点を考慮すると、既存のまっすぐな壁のまま内装を施してしまうと、商品やブランドの世界観が視線に引っかからず、そのまま視線が奥のテナントへ抜けてしまうことが懸念されました。そこで、店舗の印象をより強く、印象的に残すためには、何らかの仕掛けが必要であると考えました。
私たちは、唯一の壁面の両端から中央にかけて緩やかに膨らむ円弧形状の壁を提案しました。このわずかな起伏によって、左右から見た際に木の曲面と商品が視線の「引っかかり」となり、通行中の人々に対して商品と次々に出会うような体験を演出しています。
また、この展示壁の円弧形状は、コの字型の通路を行き来する来館者の動線や視線に自然と寄り添い、ふと店舗に目を向けた瞬間に、常に商品が正対するような視覚効果を生み出すことを狙っています。


加えて、この起伏した壁の内部も有効に活用しています。中央の最も奥行きを確保でき、かつ視認性の高い位置にはレジとバックヤード(BOH)を配置し、売り場でのオペレーションの利便性を高めました。また、大きな柱の裏側という奥まった場所には、プライバシーへの配慮から2箇所のフィッティングルームを設けています。左右の最も鋭角となる部分には館の設備であるPSがあるため、点検スペースとして計画しました。
このように、限られた壁面と開放的な構成を逆手に取り、ブランドの世界観と機能性の両立を目指した空間構成を提案しています。



DANTON FUKUOKA is located at a unique corner site, where the spatial interface is open on three sides—the two short sides and one long side all face public walkways, with only one long side retained as a solid wall. While this special spatial layout provides excellent visibility and openness from multiple directions, the limited wall surface for effective display makes it challenging to express the brand’s philosophy through the space.
From the perspective of visitors approaching from the short sides, we felt that simply finishing the existing flat wall would result in a weak visual impression. In such a case, customers’ lines of sight may pass straight through the store and land on the shops beyond. To address this, we use spatial design to draw the customer’s gaze while maintaining openness, thereby enhancing brand recognition.
To achieve this, we proposed a gently curved display wall that bulges outward from both ends of the solid wall toward the center. Made primarily of wood, the wall forms a subtle curvature acts as a visual catch from both sides, drawing people into a sequence of encounters with the merchandise as they walk byThis curved display wall also responds to the U-shaped flow of movement and sightlines of visitors within the open corridor. As customers walk along the passage and glance toward the store, the curvature of the wall continues to present the merchandise frontally, creating a natural and continuous visual dialogue that enhances the interactive experience between the brand and its audience.


We also made full use of the space behind the curved wall. The central area, which offers the most depth and visibility, was designated for the cash register and storage, optimizing operational efficiency. In the more recessed corner behind a large column, we placed two fitting rooms to ensure privacy within the open store environment. The sharpest angled corners of the space, which accommodate building equipment (PS), are designated as maintenance access paths.
By embracing the highly open nature of the site and transforming its limitations, we aimed to create a spatial design that balances brand identity with functionality.



DANTON 福冈的店铺坐落于一个特殊的角落位置,其空间界面呈现出三面开放的特征——两侧短边及一侧长边均面向公共通道,仅保留一面长边作为实体墙体。这种特殊的空间格局带来极高的开放性和良好的可视性的同时,由于有效展示面的局限,难以通过空间来传达品牌的世界观。
当顾客从两侧短边方向接近店铺时,若仅沿用原有的平直墙面进行室内设计,商品陈列将难以形成视觉焦点,顾客的视线很可能直接穿过店铺最终落于后方其他店铺。为此,我们将通过空间设计,在保持开放性的同时吸引顾客视线,提升品牌认知。
为此,我们提出了一个从实体墙两端向中央逐渐鼓出的弧形墙面设计:以木材为主要材质形成微妙的曲线变化,从左右方向看去,墙面的起伏与展示商品形成视觉锚点,让顾客在行走中不断与商品邂逅。
这个弧形展示墙的设计呼应了U型开放通道中顾客的动线与视线。当顾客在通道中行走并回望店铺时,弧面墙体的曲线始终能将商品正面呈现,形成自然而连续的视觉对话,强化了品牌与顾客之间的互动体验。


此外,我们也充分利用了弧形墙背后的空间。中央最深且最显眼的位置设置了收银台和后场功能,以确保运营效率。而在空间中原有的大型柱子背后较为隐蔽的区域,我们设置了两个试衣间,兼顾开放店铺环境中的私密性。两侧最锐角的空间则因设置了建筑设备(PS),被规划为检查维护通道。
通过顺应这个高度开放的空间特性,并转化其局限性,我们力求实现一个融合品牌表达与功能性的空间设计。



READ MORE SHOW LESS
- 敷地 site 场地
-
福岡県福岡市博多
Fukuoka, JAPAN
福岡県、日本
- 主要用途 program 主要功能
-
店舗
store
品牌概念店
- 延床面積 floor area 建筑面积
-
68.58 ㎡
68.58 ㎡
68.58 ㎡
- 施主 client 业主
-
株式会社ビショップ
Bshop inc.
Bshop inc.
- 設計 design 设计
-
株式会社小大建築設計事務所
kooo architects
小大建筑设计事务所
- 担当 staff 负责人
-
小嶋伸也・小嶋綾香・黄 永顺・罗伊・宮嶋悠輔・松田夏紀・小暮啓太
Shinya Kojima・Ayaka Kojima・Yongshun Huang・Yi Luo・Yusuke Miyajima・
Natsuki Matsuda・Keita Kogure小嶋伸也・小嶋綾香・黄永顺・罗伊・宮嶋悠輔・松田夏紀・小暮啓太
- 施工 construction 施工
-
株式会社船場
SEMBA CORPORATION
SEMBA CORPORATION
- 写真 photo 摄影
-
堀越 圭晋/SS Tokyo
Keishin Horikoshi/ SS Tokyo
Keishin Horikoshi/ SS Tokyo
- メディア media 媒体
PROJECT DATA SHOW LESS
DANTON FUKUOKAは、短手2面と長手1面の計3面が通路に面し、残る長手1面のみが壁面という、3方開放の特異な区画に位置しています。店内の視認性が非常に高く、開放感のある区画である一方で、壁面が極めて少なく、空間を通じてブランドの世界観を表現するには難しさを感じる区画でもありました。
また、短手方向の両側から来る来館者の視点を考慮すると、既存のまっすぐな壁のまま内装を施してしまうと、商品やブランドの世界観が視線に引っかからず、そのまま視線が奥のテナントへ抜けてしまうことが懸念されました。そこで、店舗の印象をより強く、印象的に残すためには、何らかの仕掛けが必要であると考えました。
私たちは、唯一の壁面の両端から中央にかけて緩やかに膨らむ円弧形状の壁を提案しました。このわずかな起伏によって、左右から見た際に木の曲面と商品が視線の「引っかかり」となり、通行中の人々に対して商品と次々に出会うような体験を演出しています。
また、この展示壁の円弧形状は、コの字型の通路を行き来する来館者の動線や視線に自然と寄り添い、ふと店舗に目を向けた瞬間に、常に商品が正対するような視覚効果を生み出すことを狙っています。


加えて、この起伏した壁の内部も有効に活用しています。中央の最も奥行きを確保でき、かつ視認性の高い位置にはレジとバックヤード(BOH)を配置し、売り場でのオペレーションの利便性を高めました。また、大きな柱の裏側という奥まった場所には、プライバシーへの配慮から2箇所のフィッティングルームを設けています。左右の最も鋭角となる部分には館の設備であるPSがあるため、点検スペースとして計画しました。
このように、限られた壁面と開放的な構成を逆手に取り、ブランドの世界観と機能性の両立を目指した空間構成を提案しています。



DANTON FUKUOKA is located at a unique corner site, where the spatial interface is open on three sides—the two short sides and one long side all face public walkways, with only one long side retained as a solid wall. While this special spatial layout provides excellent visibility and openness from multiple directions, the limited wall surface for effective display makes it challenging to express the brand’s philosophy through the space.
From the perspective of visitors approaching from the short sides, we felt that simply finishing the existing flat wall would result in a weak visual impression. In such a case, customers’ lines of sight may pass straight through the store and land on the shops beyond. To address this, we use spatial design to draw the customer’s gaze while maintaining openness, thereby enhancing brand recognition.
To achieve this, we proposed a gently curved display wall that bulges outward from both ends of the solid wall toward the center. Made primarily of wood, the wall forms a subtle curvature acts as a visual catch from both sides, drawing people into a sequence of encounters with the merchandise as they walk byThis curved display wall also responds to the U-shaped flow of movement and sightlines of visitors within the open corridor. As customers walk along the passage and glance toward the store, the curvature of the wall continues to present the merchandise frontally, creating a natural and continuous visual dialogue that enhances the interactive experience between the brand and its audience.


We also made full use of the space behind the curved wall. The central area, which offers the most depth and visibility, was designated for the cash register and storage, optimizing operational efficiency. In the more recessed corner behind a large column, we placed two fitting rooms to ensure privacy within the open store environment. The sharpest angled corners of the space, which accommodate building equipment (PS), are designated as maintenance access paths.
By embracing the highly open nature of the site and transforming its limitations, we aimed to create a spatial design that balances brand identity with functionality.



DANTON 福冈的店铺坐落于一个特殊的角落位置,其空间界面呈现出三面开放的特征——两侧短边及一侧长边均面向公共通道,仅保留一面长边作为实体墙体。这种特殊的空间格局带来极高的开放性和良好的可视性的同时,由于有效展示面的局限,难以通过空间来传达品牌的世界观。
当顾客从两侧短边方向接近店铺时,若仅沿用原有的平直墙面进行室内设计,商品陈列将难以形成视觉焦点,顾客的视线很可能直接穿过店铺最终落于后方其他店铺。为此,我们将通过空间设计,在保持开放性的同时吸引顾客视线,提升品牌认知。
为此,我们提出了一个从实体墙两端向中央逐渐鼓出的弧形墙面设计:以木材为主要材质形成微妙的曲线变化,从左右方向看去,墙面的起伏与展示商品形成视觉锚点,让顾客在行走中不断与商品邂逅。
这个弧形展示墙的设计呼应了U型开放通道中顾客的动线与视线。当顾客在通道中行走并回望店铺时,弧面墙体的曲线始终能将商品正面呈现,形成自然而连续的视觉对话,强化了品牌与顾客之间的互动体验。


此外,我们也充分利用了弧形墙背后的空间。中央最深且最显眼的位置设置了收银台和后场功能,以确保运营效率。而在空间中原有的大型柱子背后较为隐蔽的区域,我们设置了两个试衣间,兼顾开放店铺环境中的私密性。两侧最锐角的空间则因设置了建筑设备(PS),被规划为检查维护通道。
通过顺应这个高度开放的空间特性,并转化其局限性,我们力求实现一个融合品牌表达与功能性的空间设计。



READ MORE SHOW LESS







































